It is a long-established fact that a reader will be distracted by the readable content of a page when looking at its layout.

Contacts
Πως να δημιουργήσετε τα δικά σας custom weldment profiles στο SOLIDWORKS

  • Author
    Haris Papadopoulos
  • Category
    Design Tips
  • Date
    May11, 2023

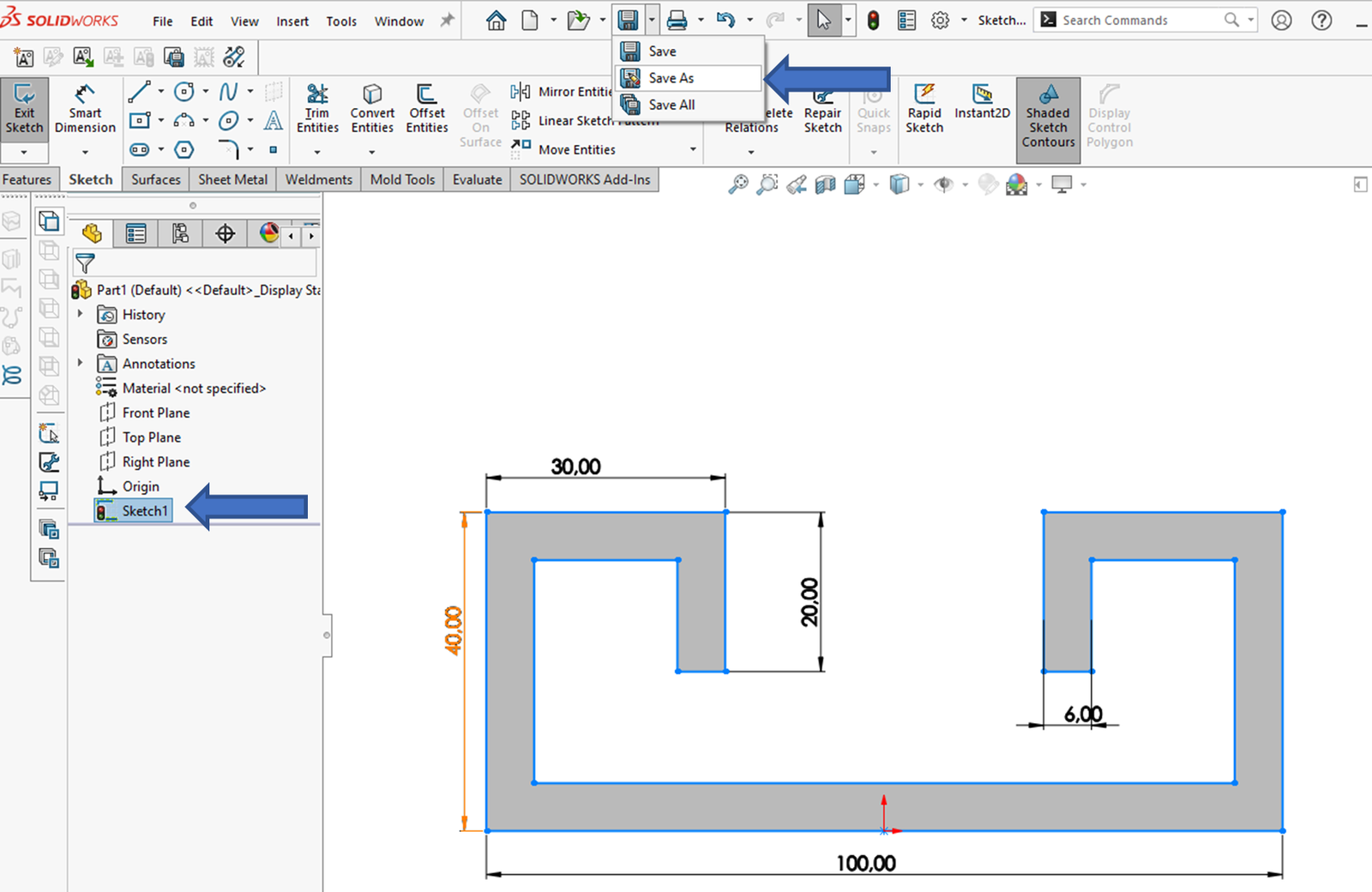
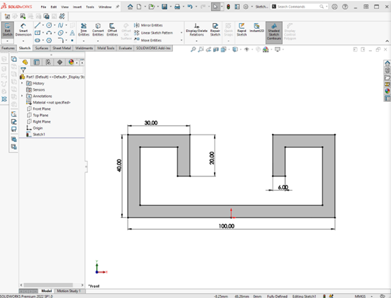
Βήμα 1. Στο πρώτο βήμα χρειάζεται να δημιουργήσετε ένα sketch το οποίο να αντιπροσοπεύει τη γεωμετρία του προφίλ που επιθυμείτε. Ένα τυπικό παράδειγμα φαίνεται στην παρακάτω εικόνα:

Βήμα 2. Στη συνέχεια πρέπει να αναζητήσετε τη διαδρομή για τον φάκελο των weldments profiles.Για να το πετύχετε αυτό πηγαίνετε στην καρτέλα Options, μετά επιλέξτε file locations και στο Show folders επιλέξτε “Weldment Profiles”.Μόλις το επιλέξετε θα σας εμφανίσει παρακάτω τη διαδρομή της θέσης του φακέλου.

Θα πρέπει να είναι σε: C:\Program Files\SOLIDWORKS Corp\SOLIDWORKS\lang\english\weldment profiles.

Σε αυτή τη διαδρομή πρέπει να αποθηκεύσουμε το sketch μας για να δημιουργηθεί το προφίλ μας.

Βήμα 3. Πρέπει να σώσετε το sketch σας, αλλά για να το κάνετε αυτό πρέπει να επιλέξετε το sketch σας και να επιλέξετε save as.

Βήμα 4. Μόλις επιλέξετε Save as θα σας εμφανιστεί το παρακάτω παράθυρο. Μπορείτε να δώσετε ένα όνομα στο αρχείο. ( Συνήθως είναι οι διαστάσεις του προφίλ σας ).

Στο Save as type πρέπει να επιλέξετε το Lib Feat Part(*.Sldlfp) και αναζητήστε το φάκελο με τα weldment profiles στη διαδρομή που δείξαμε στα προηγούμενα βήματα.

Βήμα 5. Θα πρέπει να δημιουργήσετε ένα δικό σας φάκελο και να του δώσετε κάποιο όνομα( πχ custom profiles).

Βήμα 6. Ανοίξτε το φάκελο που δημιουργήσατε και δημιουργήστε έναν ακόμα φάκελο. Το όνομα του φακέλου αναφέρεται στο σχήμα από τo weldment profile.

Βήμα 7. Ανοίξτε τον καινούριο φάκελο που δημιουργήσατε και αυτή είναι η σωστή θέση που πρέπει να αποθηκευτεί το προφίλ σας.

Βήμα 8. Εάν έχετε φτάσει σε αυτό το σημείο είστε σε θέση να χρησιμοποιήσετε το προφίλ σας. Δημιουργήστε σε καινούριο part ένα τυπικό sketch και επιλέξτε στο Standard,Type και Size. Αυτός είναι και ο λόγος που δημιουργήσαμε τους φακέλους.

Βήμα 9. Το τελικό αποτέλεσμα φαίνεται στην παρακάτω εικόνα.

About the author

Ο Χαράλαμπος Παπαδόπουλος είναι κάτοχος BSc. Mechanical Engineering, με ειδικότητα στη χρήση λογισμικών πακέτων CAD/CAM για τρισδιάστατο σχεδιασμό και παραγωγή μηχανικών συστημάτων και προϊόντων. Με το ρόλο του ως Application Engineer, συμβάλλει καθημερινά στην επίλυση τεχνικών ζητημάτων και στη δημιουργία-απόδοση εξειδικευμένων λύσεων σε διαφορετικούς βιομηχανικούς τομείς. Επιπλέον, όντας πιστοποιημένος χρήστης σε πολλαπλούς τομείς των λογισμικών SOLIDWORKS και 3DEXPERIENCE, αποτελεί βασικό μέλος του εκπαιδευτικού δυναμικού της INNOVERA.

ΜΑΘΕΤΕ ΠΕΡΙΣΣΟΤΕΡΑ

Share: